
Erweiterung eines Wohnhauses zu einem repräsentativen Mehrgenerationenhaus
Dieses laufende Projekt ist auch für uns ein ganz besonderes Vorhaben. Bereits von der ersten Konzeptionierung an begleiten wir den Bauherren und verbinden die architektonischen Besonderheiten mit maximaler Energieeffizienz und attraktiven Fördermitteln.

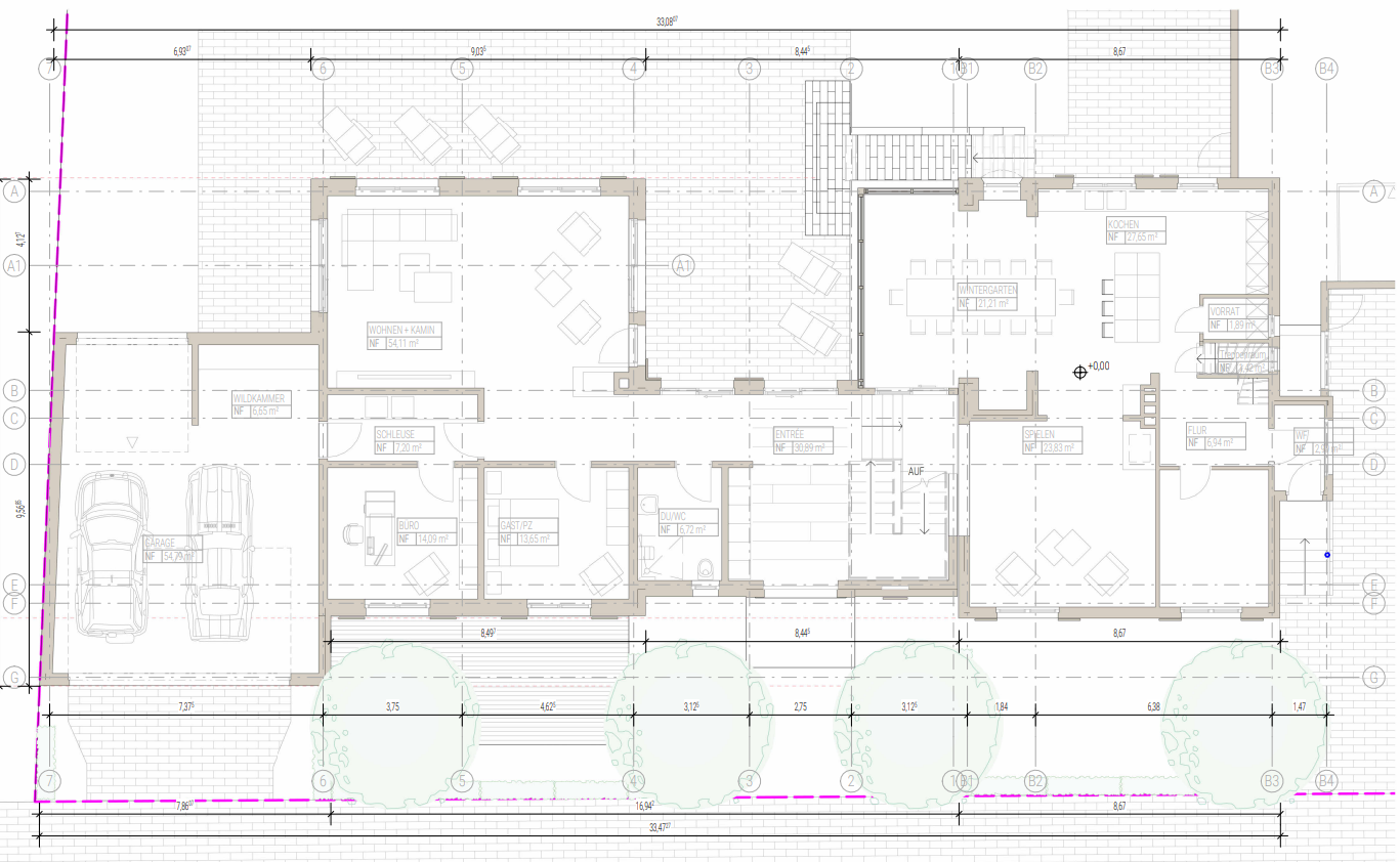
Projektübersicht
Eine zentrale Herausforderung ist es die individuellen Wünsche des Bauherren mit ins das energetische Gesamtkonzept zu integrieren und die besondere Architektur mit den höchstmöglichen Effizienzstandards zu kombinieren. Dies erfordert bereits in der frühen Planungsphase eine enge Abstimmung zwischen Architekt und Energieberater und eine ganzheitlich gedachte Betreuung.
Weitere Projekte
Kontaktinformationen
Lassen Sie uns gemeinsam Ihr Bauprojekt voranbringen und vereinbaren Sie eine
kostenlose Erstberatung
Ob erste Fragen oder konkrete Pläne wir melden uns schnell, persönlich und mit Klarheit zurück. Nutzen Sie das Formular oder rufen Sie direkt an.
Wir freuen uns von Ihnen zu hören.
Aus Zierenberg in ganz Deutschland tätig
Bergstraße 6, 34289 Zierenberg











.jpeg)